Cod. 2146
Doppelhaush
Torri del Benaco
€ 498.000,00
Video
3
3

Scrollen Sie durch die Bilder
der Immobilie

Eigenschaftenblatt
Typologie:
Doppelhaush
Größe:
110 mq
Boden:
Erdgeschoss
erster Stock
floors:
Stockwerknummer
Heizung:
unabhängige Heizung
Zustand:
12
Energieklasse:
In fase di definizione
EINFAMILIENHAUS MIT SPEKTAKULÄREM SEE-BLICK!
TORRI DEL BENACO - Ortsteil Pai - Immobilinea bietet exklusiv dieses Doppelhaus an, das aus einem hellen Wohnzimmer mit Küchenzeile und Zugang zur wunderbaren bewohnbaren Terrasse mit Blick auf den See besteht. Zudem gibt es ein Schlafzimmer und ein Fensterbad; im oberen Dachgeschoss einen geräumigen Raum mit Gaube mit Seeblick und ein weiteres Fensterbad.
Im Untergeschoss wird derzeit ein Studio komplett umgebaut, das über ein Fensterbad verfügt und Ausgang zum eigenen Garten hat, in dem man einen kleinen Pool integrieren kann – alles stets mit wunderschönem Seeblick!
Das Haus befindet sich momentan in der Renovierung, sodass die Möglichkeit zur Personalisierung der Innenaufteilung, der Installationen und Ausstattungen besteht!
Ideal für diejenigen, die sich entspannen und vom Alltag abschalten möchten!
alles lesen
Schließen
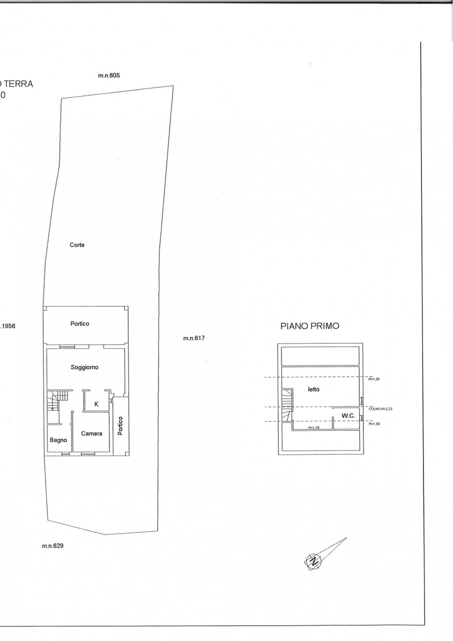
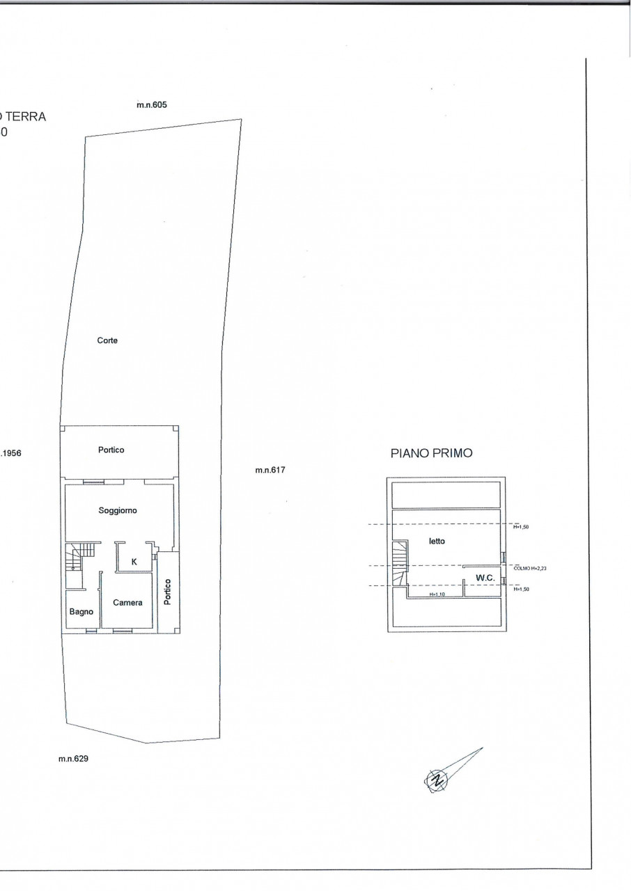
GRUNDRISSE
Planimetria 1
Planimetria 2
Planimetria 3
Planimetria 4
Planimetria 5
Planimetria 6
Planimetria 7
Planimetria 8
Sie wünschen Informationen zu diesem Objekt?
REFERENZAGENTUR
Garda
Corso Italia, 95
Tel +39 045 2474396
info@immobilinea.it
Suchen Sie nach weiteren Immobilien in Torri del Benaco?
Nahe
Suche nach anderen Angeboten Doppelhaush
Nahe