Cod. 2162
Vierfamilienhaus
Torri del Benaco
€ 2.050.000,00

Scrollen Sie durch die Bilder
der Immobilie

Eigenschaftenblatt
Typologie:
Vierfamilienhaus
Größe:
790 mq
age
1933
Boden:
Erdgeschoss
erster Stock
oberste Etage
floors:
not specified
Heizung:
unabhängige Heizung
Zustand:
ottimo
Energieklasse:
In fase di definizione
HISTORISCHE GEBAUDE MIT SEEBLICK IN DER NAHE VON DER MITTELALTERLICHEN HAFEN
TORRI DEL BENACO - ZENTRUM - Dieses majestätische historische Gebäude aus dem Jahr 1933 befindet sich im Herzen des Zentrums von Torri del Benaco, in der Nahe vom mittelalterlichen Hafen entfernt und in der ersten Reihe mit Blick auf das Schloss!
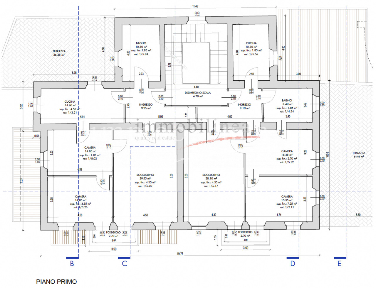
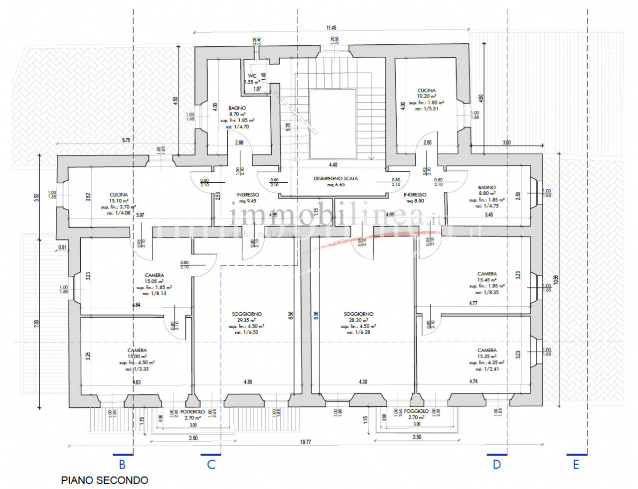
Der Hauptzugang von der Via Fratelli Lavanda führt zum Eingangsatrium mit Keller und Garten auf der Rückseite, während das große Treppenhaus, in dem ein Lift installiert werden kann, die 4 großen Vierzimmerwohnungen im ersten und zweiten Stock mit Terrassen und Balkonen mit Blick auf den See begleitet.
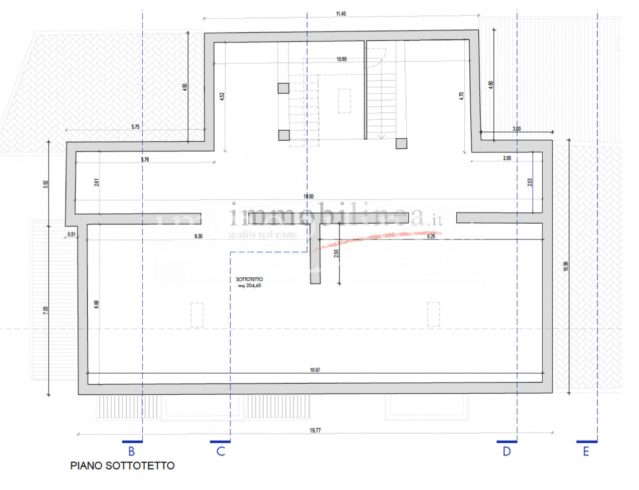
Der letzen Stock kann aufgrund der großzügigen Größe nach Belieben angepasst werden.
Neben der sehr zentralen Lage und der Historie wird die Einzigartigkeit dieses Gebäudes auch durch die großen Innenhöhen von bis zu 4,5 Metern gegeben!
5 Minuten zu Fuss von der Strukturentfernt, gibt es sechs Tiefgaragen, die in der Preis imbegriffen sind. Einmalige Gelegenheit!
alles lesen
Schließen
GRUNDRISSE
Planimetria 1
Planimetria 2
Planimetria 3
Planimetria 4
Planimetria 5
Planimetria 6
Planimetria 7
Planimetria 8
Sie wünschen Informationen zu diesem Objekt?
REFERENZAGENTUR
Garda
Corso Italia, 95
Tel +39 045 2474396
info@immobilinea.it
Suchen Sie nach weiteren Immobilien in Torri del Benaco?
Nahe
Suche nach anderen Angeboten Vierfamilienhaus
Nahe