Cod. 2272
apartment
Garda
€ 475.000,00
3
3

Scroll through the images
of the property

Property info
Type:
apartment
Size:
120 mq
age
2024
floor:
ground floor
floors:
0
Heating:
independent heating
underfloor heating
Condition:
ottimo
Energy class:
A4
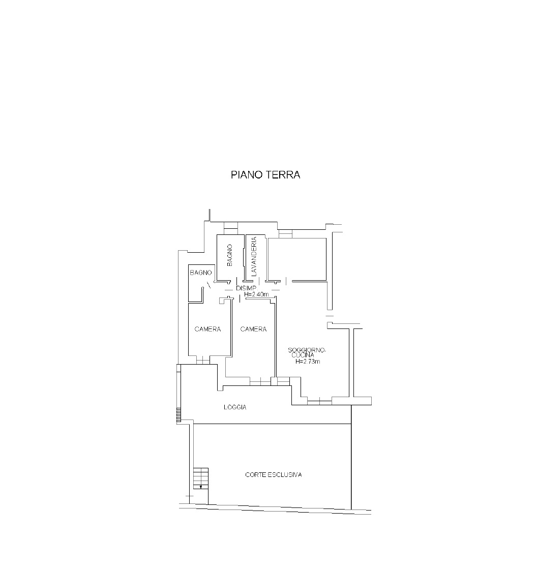
New four-room apartment in exclusive residence with swimming pool in Garda center
Just a few steps from the charming historic center of Garda, we offer for sale an elegant ground floor four-room apartment in a prestigious residence built in 2024. The property is located within a modern structure consisting of only 10 residential units and features a communal swimming pool ideal for moments of relaxation and socializing.

The apartment offers 85 square meters of living space and comprises three spacious bedrooms, three modern bathrooms, a large living room with kitchenette that opens onto a beautiful covered porch and perfectly maintained private garden. The energy class A4 ensures maximum savings thanks to the photovoltaic panels installed on the roof of the building.

Completing the property are a large private cellar and two exclusive parking spaces within the complex. The finishes are contemporary and designed to provide year-round comfort: this solution is perfect both as a primary residence – given its proximity to all essential services in town – or as a second holiday home due to the presence of the swimming pool.

The strategic location allows easy access to the shores of Lake Garda, typical restaurants, shops, and all local attractions without sacrificing tranquility offered by the residential area surrounded by greenery from olive groves.

Don't miss this unique opportunity to live or invest in one of the most enchanting places in Verona province! Contact our real estate agency immediately for more information or to schedule a visit.
Close
PLANIMETRIES
Planimetria 1
Planimetria 2
Planimetria 3
Do you want information on this property?
REFERENCE AGENCY
Garda
Corso Italia, 95
Tel +39 045 2474396
info@immobilinea.it
Are you looking for other properties in Garda?
Search
Search for other offers apartment
Search